Tu Hogar Ideal en La Barra: Innovación Arquitectónica y Naturaleza en Perfecta Armonía

U$S 410.000
  • Destacada
  • Venta
La Barra - Maldonado

Tu Hogar Ideal en La Barra: Innovación Arquitectónica y Naturaleza en Perfecta Armonía

U$S 410.000
  • Destacada
  • Venta
La Barra - Maldonado

Información

  • Tipo Casa
  • Baños 3
  • Fondo/Patio Si
  • m2 total 290 m2
  • m2 construidos 198 m2

Descripción

Tu Hogar Ideal en La Barra: Innovación Arquitectónica y Naturaleza en Perfecta Armonía

Explora la sofisticación contemporánea en este exclusivo conjunto de seis casas modernas minimalistas en pleno corazón de La Barra de Maldonado, desarrolladas sobre sobre un lote de 2.004 m2.
Cada residencia, cuidadosamente diseñada, se integra armoniosamente en un entorno compartido, brindando la privacidad que deseas a la vez que la seguridad añadida que proporciona el conjunto.
Descubre la independencia de tu propio espacio, mientras te sumerges en la belleza de una gran piscina central.
A solo 500 metros de la playa, esta fusión de modernidad y conexión te invita a vivir la vida en su máxima expresión.

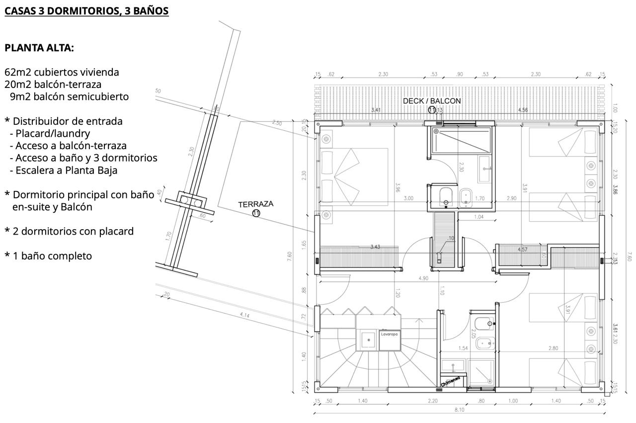
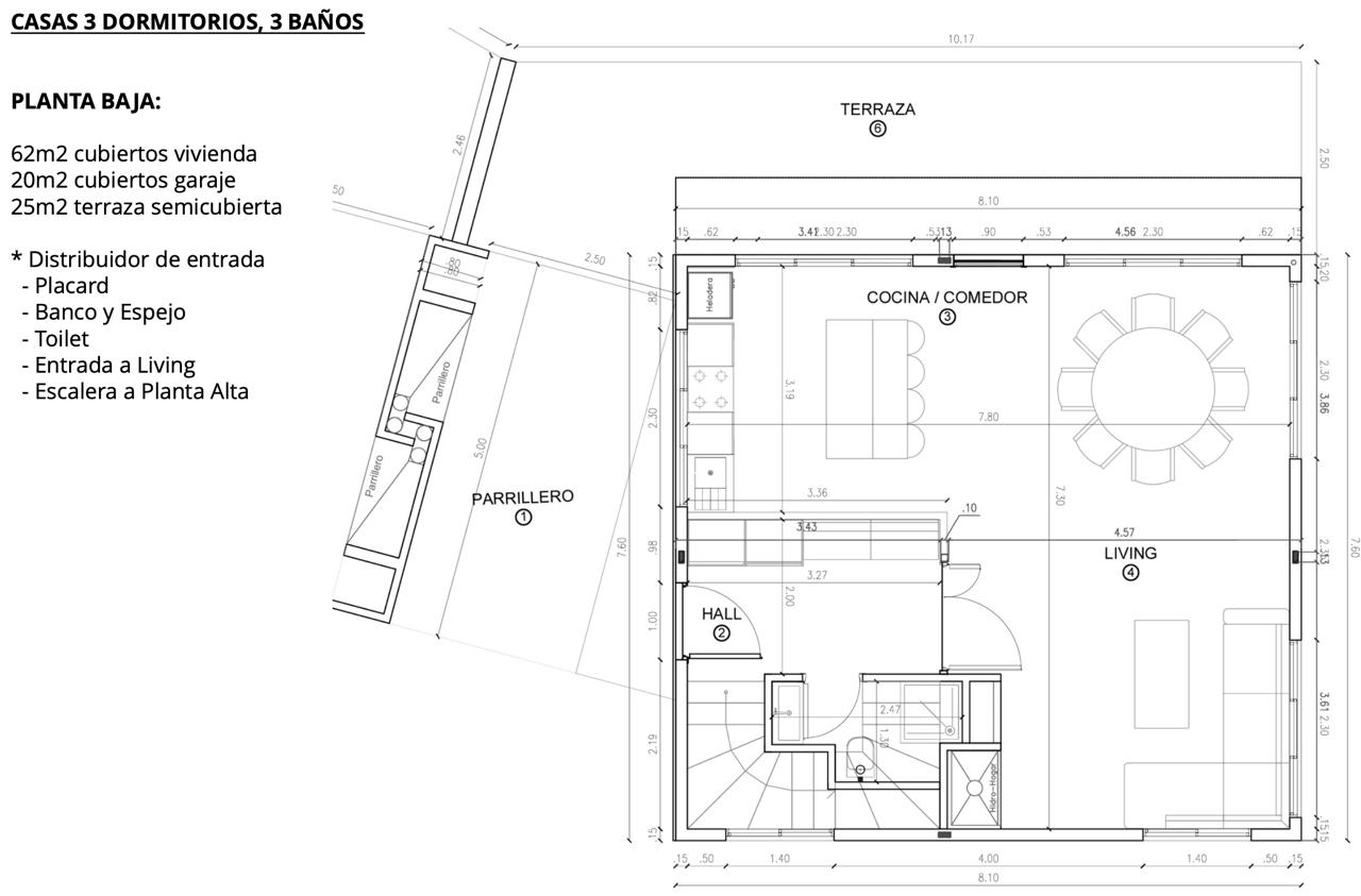
CASAS 3 DORMITORIOS, 3 BAÑOS
PLANTA BAJA:
•    62 m2 cubiertos vivienda
•    20 m2 cubiertos garaje
•    25 m2 terraza semicubierta
•    Distribuidor de entrada
•    Placard
•    Toilet
•    Entrada a Living
•    Escalera a Planta Alta
•    Amplio living comedor.
•    Cocina integrada.
•    Barbacoa techada y cochera

PLANTA ALTA:
•    62 m2 cubiertos vivienda
•    20 m2 balcón-terraza
•    9 m2 balcón semicubierto
•    Distribuidor de entrada
•    Placard laundry
•    Acceso a balcón-terraza
•    Acceso a baño y 3 dormitorios
•    Escalera a Planta Baja
•    Dormitorio principal con baño en-suite y balcón
•    2 dormitorios con placard
•    Baño completo

* 6 unidades disponibles

Descubre tu próximo hogar en La Barra, ¡Agenda una visita hoy mismo!

Ubicación

¿Cómo llegar?

-34.911330471134, -54.860746571794

¡Contáctanos por WhatsApp para más información sobre esta propiedad!

099 736 293

¿Necesitas más información? ¡Contáctanos!